Дорожный блокиратор Silar ПЗП 5000 ГН — гидравлическая подъёмная преграда накладного типа для оперативного перекрытия проездов на КПП, промышленных и режимных объектах. Конструкция устанавливается поверх дорожного полотна без врезки, включает основную платформу и пандусы для безопасного въезда/съезда, работает от внешней гидростанции и фиксируется в поднятом положении запиранием давления в линии. В опущенном состоянии блокиратор не мешает движению и выдерживает интенсивную эксплуатацию.
Поворотная заградительная платформа приводится в действие гидроцилиндром: при нажатии «ВВЕРХ» давление подается в напорную линию, платформа занимает наклонное заградительное положение; при подаче давления в обратную линию — опускается. Рамные элементы изготовлены из стального проката с рифлёным листом, обеспечивающим противоскользящие свойства. Модель рассчитана на суровые климатические условия и совместима с пультом, светофорами и дистанционным управлением.
ПЗП 5000 ГН сертифицирован и выпускается по действующим ТУ, выдерживает осевую нагрузку до 30 т и ударную энергию до 1800 кДж (30 т на 40 км/ч). Накладное исполнение упрощает монтаж на готовых покрытиях: платформа и пандусы крепятся анкерами, подключение к гидростанции выполняется рукавами высокого давления через стандартный штуцер.
Особенности
- Накладной монтаж на дорожное полотно без врезки
- Поворотная заградительная платформа с гидравлическим приводом
- Быстрое срабатывание — подъём до 3 секунд
- Рифлёная стальная поверхность платформы и пандусы в комплекте
- Работа в условиях умеренного и холодного климата
Преимущества
- Выдерживает удар до 1800 кДж (30 т на 40 км/ч)
- Нагрузка на ось до 30 т
- Упрощённый монтаж и обслуживание
- Совместимость со светофорами и дистанционным управлением
Недостатки
- Требуется внешняя гидростанция и РВД-обвязка
- Значительная масса комплекта с пандусами
Устройство и работа
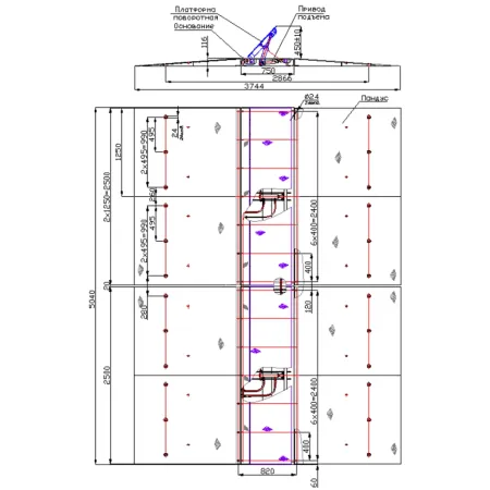
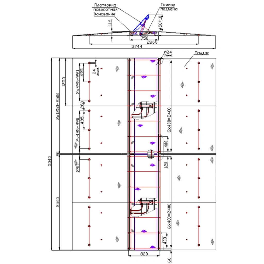
Конструкция ПЗП состоит из платформы стационарной, платформы поворотной заградительной, привода подъёма и пандусов.Конструктивно платформа неподвижная стационарная и платформа поворотная представляют собой раму, изготовленную из стального проката (рифленый лист, швеллер и профильная труба). К стационарной платформе посредством осей и блокирующих цепей крепится поворотная платформа. Поворотная платформа шарнирно связана с приводом подъёма, который расположен в центре подъемной платформы.
Привод подъема включает в себя: гидроцилиндр, поворотные шарниры, подводящие и отводящие гидролинии из напорных рукавов высокого давления.
Работа ПЗП
При нажатии кнопки «ВВЕРХ» давление масла подается в напорную подводящую линию гидроцилиндров. Шток гидроцилиндра сообщает движение платформе поворотной, и она занимает наклонное заградительное положение. Фиксирование поворотной платформы в заградительном состоянии осуществляется гидрораспределителем гидростанции, который запирает масло в подводящей напорной гидролинии. При подаче давления масла в обратную гидролинию, поворотная платформа опустится и займет горизонтальное положение.
Технические характеристики:
Основные параметры- Тип монтажа: накладной на дорожное полотно
- Длина: 5040 мм
- Ширина с пандусами: 3750 мм
- Высота преграды: 116 мм
- Высота подъема заградительной платформы: 450 ± 15 мм
- Привод: гидравлический
- Давление масла в гидросистеме: 6–7 МПа
- Время подъема платформы: не более 3 с
- Максимальная нагрузка на ось: до 30 т
- Максимально выдерживаемая энергия удара: 1800 кДж (10 т на 40 км/ч)
- Штуцер под присоединение РВД: М16х1,5, конус 24°
- Крепление основания и пандусов ПЗП: болты фундаментные клиновые М20
- Исполнение: УХЛ1 по ГОСТ 15150
- Температурный диапазон эксплуатации: от −60 °C до +40 °C
- Масса ПЗП / с пандусами, не более: 810/2500 кг
- Гарантийный срок: 12 месяцев со дня продажи
- Гарантия не распространяется на лакокрасочное покрытие
Модификации гидравлических противотаранных накладных блокираторов
- ПЗП 2000Гн - Длина 2000 мм, Ширина с пандусами 3744 мм, Высота преграды 116 мм, Высота подъема 450 мм
- ПЗП 2500Гн - Длина 2500 мм, Ширина с пандусами 3744 мм, Высота преграды 116 мм, Высота подъема 450 мм
- ПЗП 3000Гн - Длина 3020 мм, Ширина с пандусами 3744 мм, Высота преграды 116 мм, Высота подъема 450 мм
- ПЗП 3500Гн - Длина 3500 мм, Ширина с пандусами 3744 мм, Высота преграды 116 мм, Высота подъема 450 мм
- ПЗП 4000Гн - Длина 4020 мм, Ширина с пандусами 3744 мм, Высота преграды 116 мм, Высота подъема 450 мм
- ПЗП 5000Гн - Длина 5040 мм, Ширина с пандусами 3750 мм, Высота преграды 116 мм, Высота подъема 450 мм
- ПЗП 6000Гн - Длина 6020 мм, Ширина с пандусами 3750 мм, Высота преграды 116 мм, Высота подъема 450 мм
- Гидростанция СР50 в защищенном боксе, с блоком управления системой аварийного открытия рассчитанная на блокиратор до 6 м
- Комплект рукавов высокого давления 10 м
- Светофор двухсекционный
- Стойка под крепление светофора
- Комплект фотоэлементов
- Стойка под фотоэлемент
- Предупреждающий знак
- Стойка под предупреждающий знак
- Плата радиоуправления с выносной антенной
- Брелок радиоуправления
- Комплект подогрева рукавов высокого давления
Бренд | Silar |
Тип блокиратора | Автоматический |
Тип привода | Гидравлический |
Конструкция | Противотаранный |
Нагрузка на ось | 30 тонн |
Скорость подъема | 3 сек. |
Сопротивление проникновению | 1 800 кДж |
Сопротивление наезду | 30000 кг / 40 км/ч |
Тип монтажа | Поверхностный |
Ширина, мм | 5040 |
Высота, мм | 450 |
Глубина, мм | 3750 |
Вес, кг | 2500 |
Рабочая температура | от -60°С до +60°С |
Гарантия | 1 год |
Страна производства | Россия |
Функция «Быстрый заказ» позволяет покупателю не проходить всю процедуру оформления заказа самостоятельно. Вы заполняете форму, и через короткое время вам перезвонит менеджер магазина. Он уточнит все условия заказа, ответит на вопросы, касающиеся качества товара, его особенностей. А также подскажет о вариантах оплаты и доставки.
По результатам звонка, пользователь либо, получив уточнения, самостоятельно оформляет заказ, укомплектовав его необходимыми позициями, либо соглашается на оформление в том виде, в котором есть сейчас. Получает подтверждение на почту или на мобильный телефон и ждёт доставки.
Оформление заказа в стандартном режиме
Если вы уверены в выборе, то можете самостоятельно оформить заказ, заполнив по этапам всю форму.
Заполнение адреса
Выберите из списка название вашего региона и населённого пункта. Если вы не нашли свой населённый пункт в списке, выберите значение «Другое местоположение» и впишите название своего населённого пункта в графу «Город». Введите правильный индекс.
Доставка
В зависимости от места жительства вам предложат варианты доставки. Выберите любой удобный способ. Подробнее об условиях доставки читайте в разделе «Доставка».
Оплата
Выберите оптимальный способ оплаты. Подробнее о всех вариантах читайте в разделе «Оплата»
Покупатель
Введите данные о себе: ФИО, адрес доставки, номер телефона. В поле «Комментарии к заказу» введите сведения, которые могут пригодиться курьеру, например: подъезды в доме считаются справа налево.
Оформление заказа
Проверьте правильность ввода информации: позиции заказа, выбор местоположения, данные о покупателе. Нажмите кнопку «Оформить заказ».
Наш сервис запоминает данные о пользователе, информацию о заказе и в следующий раз предложит вам повторить к вводу данные предыдущего заказа. Если условия вам не подходят, выбирайте другие варианты.
Если Вы хотите узнать об условиях доставки и оплаты, но не желаете о них читать, то Вы можете позвонить любому нашему сотруднику, и он обязательно Вам поможет.
Покупка за безналичный расчет
При оплате за безналичный расчет наш сотрудник свяжется с Вами, чтобы подтвердить заказ и уточнить сроки и адрес доставки. После оформления заказа сотрудник нашей компании вышлет вам счет, по которому необходимо будет произвести оплату.
После оплаты заказа к Вам приедет наш курьер, который доставит ваш заказ.
Самостоятельно забрать заказ из пунктов самовывоза Вы можете после его оплаты по безналичному расчету. Оплата доставки до пунктов выдачи транспортных компаний производится по тарифам выбранной Вами транспортной компании непосредственно в месте получения заказа.
Самовывоз из офиса нашей компании в Зеленограде, так же возможен после предоплаты по безналичному расчету, и предварительной договоренности с менеджером.
Интернет-магазин выполняет доставку любого товара своей собственной Службой доставки.
Стоимость доставки курьером
Стоимость доставки по Москве, Все товары —750 руб., бесплатная доставка от 25000 руб
Стоимость доставки по Московской области рассчитывается для каждого заказа индивидуально и зависит от суммарного веса товаров заказа и удаленности адреса доставки.
Время доставки
Время доставки согласовывается с менеджером Службы доставки, который обязательно свяжется с вами сразу после того, как вы разместите свой заказ.
Для осуществления доставки в регионы России мы пользуемся услугами компаний СДЭК, ЖелДорЭкспедиция, Автотрейдинг, Деловые Линии. В таком случае, указанными кампаниями взимается стоимость доставки по их внутренним тарифам с заказчика при получении товара.
Самовывоз
Забрать товар самостоятельно и абсолютно бесплатно можно только по адресу: Москва, Зеленоград, Панфиловский проспект, дом 10.
Забрать товар самовывозом можно по любому из адресов самовывоза указанных здесь, стоимость доставки до пункта самовывоза рассчитывается для каждого заказа по тарифам транспортных компаний.











