Фильтр
Автоматические шлагбаумы Фантом (Россия) в Екатеринбурге
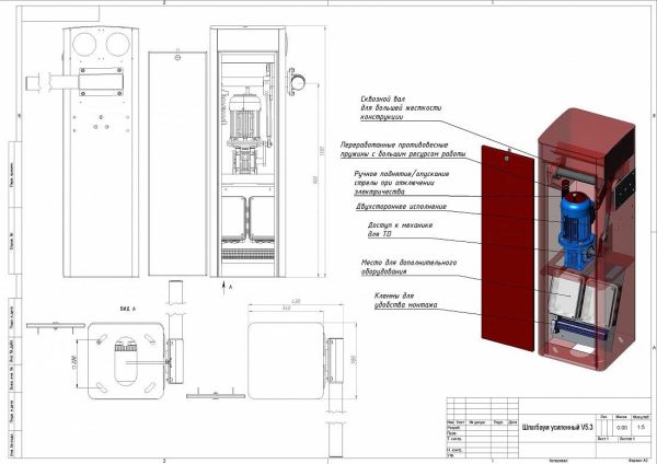
102Тумбы шлагбаумов92 товара
Стрелы для шлагбаумов286 товаров
Опоры для стрел (ловители)32 товара
Шторки под стрелу (защитная «юбка»)18 товаров
Комплектующие для шлагбаумов153 товара
Пульты для шлагбаумов123 товара
Обогреватели для шлагбаумов14 товаров
Ограждения для защиты шлагбаума3 товара
Профессиональные преграждающие устройства, основной элемент любой современной парковочной системы


























































































































