Компания Magnetic произвела революцию в мире турникетов и переосмыслила подход к их проектированию. Благодаря уникальному дизайну, плавным линиям и разнообразию цветов калитки FlowMotion® легко вписываются в любую и даже самую сложную архитектуру.
• FlowMotion® mSwing, скоростной турникет с распашными створками
• Организация аварийной эвакуации, проноса багажа, тележек или лиц с ограниченными возможностями
• Одиночная или спаренная установка
• Калитка обеспечивает свободный проход в случае отключения электроэнергии и по тревоге
• 100% интенсивность работы
• Низкая сила удара при касании створки
• Разработан с учетом ресурса от 10 000 000 циклов
• IP54, -30 to +55 °C
Вся продукция FlowMotion® имеет унифицированный дизайн. Тонкая форма корпуса позволяет легко разместиться в проходах, а привлекательный дизайн радовать глаз пользователя. В 2018 году модель mTripod была удостоена награды German Design Award от взыскательного жюри.
Гибкая интеграция решений FlowMotion® в любые интерьеры за счет выбора индивидуального цвета. Magnetic сосредоточен не только на красоте форм, но на их цветовом воплощении. Magnetic предлагает широкую гамму расцветок и высокоэффективных покрытий. Входные группы FlowMotion® идут в ногу со временем и тенденциями промышленного дизайна.
Функциональные особенности
• Направление прохода: В одно и в оба направления
• Аварийная разблокировка: При отключении питания или замыкании аварийного контакта
• Конфигурация входов и выходов:
• Сбор данных и журнал событий: 8 цифровых входов, 4 цифровых выхода и 6 выходов реле
• Настройка: Через USB интерфейс
Выбор створок:
• FMSW_G10E950 - Стандартная стеклянная створка mSwing 994 x 1000 мм (высота "A" x ширина прохода "D")
• FMSW_G18E950 - Высокая створка mSwing: 1800 x 1000 мм (высота "A" x ширина прохода "D")
• FMSW_GSPC - Индивидуальный размер створки mSwing, макс. 1800 x 1000 мм (высота "A" x ширина прохода "D")
• GKS103 - Защитная кромка стекла для mSwing FMSW_G10E950, 1 шт.
Турникеты и ограждения FlowMotion® обеспечивают безопасность предприятий, государственные учреждений и учреждения культуры от несанкционированного доступа. Благодаря единой линейки FlowMotion® все продукты можно легко комбинировать. Многочисленные опции и аксессуары делают FlowMotion® идеальной входной группой.
FlowMotion® основана на надежной технологии MHTM™, которая также используется в шлагбаумах Magnetic: блок управления MGC обеспечивает прямой доступ ко всем функциям, параметрам и информации. MHTM ™ не требует обслуживания, энергоэффективен, бесшумен и рассчитан на 10 миллионов циклов.
FlowMotion® использует современные интерфейсы взаимодействия человека с высокотехнологичными технологиями, что позволяет построить комфортную среду зданий. Входные группы с использованием FlowMotion® - наиболее удобное для пользователя решение, которое интуитивно понятно и делает проход наиболее простым и беспроблемным.
Характеристики:
• Вариант тумбы: FMSW_MG - Калитка FlowMotion® mSwing для установки стеклянной створки
• Исполнение: Уличное и внутреннее
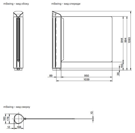
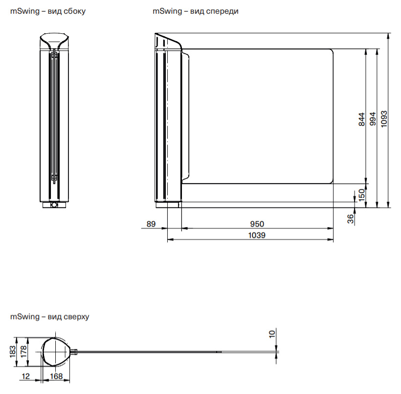
• Ширина прохода:
- Стандартная створка: 1000 мм
- Широкая створка: 1200 мм
• Высота створок: Стандартная: 994 мм
• Время открытия и закрытия: 2.0-5.5 сек, зависит от размеров створки
• Привод: MHTM™
• Плата управления: MGC
• Напряжение питания: 100–240 В ~ 50/60 Гц
• Потребление: 30 Вт
• Интенсивность: 100%
• Материал тумбы: Алюминий
• Степень защиты: IP 54
• Температурный диапазон: −30 ... +55 °C
• Высота тумбы: 1092 мм
• Диаметр тумбы: 183 х 168 мм
• Цвет: Базальт (близкий к RAL 9006), Антрацит (близкий к RAL 9005)
В стандартную комплектацию калитки не входит крепеж к полу
Аксессуары для калитки Magnetic mSwing
Подсветка
• RLED103 Подсветка на корпусе калитки красно/зеленая
• BOLED103 Белая подсветка пола
• EP110 Услуга установки подсветки (за 1 единицу)
Сирена
• ESU103 Встраиваемая звуковая сирена
• EP113 Услуга установки аксессуара (за 1 единицу)
Интерфейсы
• MEB103 Плата расширения для интерфейсных модулей
• EM01 Ethernet интерфейсный модуль
Кнопка экстренной разблокировки / Сервисный модуль
• NT100 Кнопка экстренной блокировки
• SM01 Сервисный модуль для переноса настроек и обновления прошивки платы управления
Пульты управления
• PULT01 Пульт управления 1 устройством
• PULT02 Пульт управления 2 устройствами
Опции крепежа
В стандартную комплектацию калитки не входит крепеж к полу.
Опция №1: Установка на финишное покрытие пола
• BSS103 Комплект крепления с химическими анкерами на пол с финишным покрытием
Опция №2a Установка на стадии подготовки пола
• FURA103 Монтажная пластина FlowMotion®
• BSSFURA103 Металлическая опорная пластина для установки на черновое покрытие перед стяжкой
Опция №3 Установка на финишное покрытие с помощью специального высокоадгезионного клея
• FURA103 Монтажная пластина FlowMotion®
• BSSKL100 Высокоадгезионный клей FlowMotion® для FURA103 к полу
Опция №4 Установка для брусчатки
• FURA113 Пластина для установки на брусчатку высотой H=150мм
• BSS103 Комплект крепления с химическими анкерами
Опция №5: Подиум
• FMMS_SW Подиум из нерж. стали, для калитки mSwing до 1000 mm
Бренд | Magnetic |
Вид калитки | Полуростовая |
Исполнение | Уличное |
Тип калитки | Автоматическая |
Направление поворота | В обе стороны |
Пульт управления | Приобретается отдельно |
Материал | Нержавеющая сталь |
Интеграция со СКУД | Любые типы СКУД |
Напряжение питания | 100...240 В |
Источник питания | В комплект НЕ ВХОДИТ! (приобретается отдельно) |
Потребляемая мощность, макс. | 30 Вт |
Габариты | 168х183х1093 мм |
Вес, кг | 40 |
Материал вставки (створки) | Без вставки |
Рабочая температура | от -30°C до +55°C |
Класс защиты (IP) | IP54 |
Страна производства | Германия |
Функция «Быстрый заказ» позволяет покупателю не проходить всю процедуру оформления заказа самостоятельно. Вы заполняете форму, и через короткое время вам перезвонит менеджер магазина. Он уточнит все условия заказа, ответит на вопросы, касающиеся качества товара, его особенностей. А также подскажет о вариантах оплаты и доставки.
По результатам звонка, пользователь либо, получив уточнения, самостоятельно оформляет заказ, укомплектовав его необходимыми позициями, либо соглашается на оформление в том виде, в котором есть сейчас. Получает подтверждение на почту или на мобильный телефон и ждёт доставки.
Оформление заказа в стандартном режиме
Если вы уверены в выборе, то можете самостоятельно оформить заказ, заполнив по этапам всю форму.
Заполнение адреса
Выберите из списка название вашего региона и населённого пункта. Если вы не нашли свой населённый пункт в списке, выберите значение «Другое местоположение» и впишите название своего населённого пункта в графу «Город». Введите правильный индекс.
Доставка
В зависимости от места жительства вам предложат варианты доставки. Выберите любой удобный способ. Подробнее об условиях доставки читайте в разделе «Доставка».
Оплата
Выберите оптимальный способ оплаты. Подробнее о всех вариантах читайте в разделе «Оплата»
Покупатель
Введите данные о себе: ФИО, адрес доставки, номер телефона. В поле «Комментарии к заказу» введите сведения, которые могут пригодиться курьеру, например: подъезды в доме считаются справа налево.
Оформление заказа
Проверьте правильность ввода информации: позиции заказа, выбор местоположения, данные о покупателе. Нажмите кнопку «Оформить заказ».
Наш сервис запоминает данные о пользователе, информацию о заказе и в следующий раз предложит вам повторить к вводу данные предыдущего заказа. Если условия вам не подходят, выбирайте другие варианты.
Если Вы хотите узнать об условиях доставки и оплаты, но не желаете о них читать, то Вы можете позвонить любому нашему сотруднику, и он обязательно Вам поможет.
Покупка за безналичный расчет
При оплате за безналичный расчет наш сотрудник свяжется с Вами, чтобы подтвердить заказ и уточнить сроки и адрес доставки. После оформления заказа сотрудник нашей компании вышлет вам счет, по которому необходимо будет произвести оплату.
После оплаты заказа к Вам приедет наш курьер, который доставит ваш заказ.
Самостоятельно забрать заказ из пунктов самовывоза Вы можете после его оплаты по безналичному расчету. Оплата доставки до пунктов выдачи транспортных компаний производится по тарифам выбранной Вами транспортной компании непосредственно в месте получения заказа.
Самовывоз из офиса нашей компании в Зеленограде, так же возможен после предоплаты по безналичному расчету, и предварительной договоренности с менеджером.
Интернет-магазин выполняет доставку любого товара своей собственной Службой доставки.
Стоимость доставки курьером
Стоимость доставки по Москве, Все товары —750 руб., бесплатная доставка от 25000 руб
Стоимость доставки по Московской области рассчитывается для каждого заказа индивидуально и зависит от суммарного веса товаров заказа и удаленности адреса доставки.
Время доставки
Время доставки согласовывается с менеджером Службы доставки, который обязательно свяжется с вами сразу после того, как вы разместите свой заказ.
Для осуществления доставки в регионы России мы пользуемся услугами компаний СДЭК, ЖелДорЭкспедиция, Автотрейдинг, Деловые Линии. В таком случае, указанными кампаниями взимается стоимость доставки по их внутренним тарифам с заказчика при получении товара.
Самовывоз
Забрать товар самостоятельно и абсолютно бесплатно можно только по адресу: Москва, Зеленоград, Панфиловский проспект, дом 10.
Забрать товар самовывозом можно по любому из адресов самовывоза указанных здесь, стоимость доставки до пункта самовывоза рассчитывается для каждого заказа по тарифам транспортных компаний.























