Полноростовые электромеханические турникеты предназначены для регулирования и управления потоками людей в местах с высокой интенсивностью движения, например, на стадионах, вокзалах, в аэропортах и государственных учреждениях.
Турникет приводится в действие устройством управления, которое дает команду разблокировать механизм. Стержни-планки перемещаются вручную вплоть до срабатывания гидравлического доводчика, который замедляет вращение центральной стойки до возврата стержней-планок в исходное состояние. При повороте на более, чем 45° система препятствует возврату стержней-планок в исходное положение.
• Корпус из оцинкованной окрашенной стали
• Ротор и планки из нержавеющей стали AISI 304 с гидравлической доводкой
• Однопроходной
• Четыре сектора по 90 градусов
• Встроенный блок управления
• Индикатор направления движения
• Светодиодное освещение зоны прохода
• Управление проходом в двух направлениях.
• Аварийный режим - режим свободного прохода.
• Возможность выбора режима свободного прохода и ограничения доступа на встречных направлениях.
• Совместимость со СКУД, работающих по "сухому контакту"
• Встроенный блок питания
Технические характеристики:
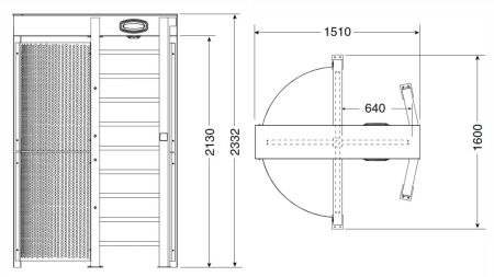
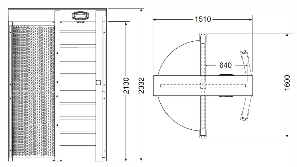
• Мин. ширина проема (мм): 1510
• Макс. количество проходов в минуту: 10
• Питание блока управления: ~230 В, 50/60 Гц
• Электропитание аксессуаров: ~24 В
• Макс. потребляемый ток: 223 мA
• Класс изоляции: II
• Диапазон рабочих температур (°C): -20 ÷ +55
• Класс защиты: IP44
• Масса: 430 кг
Описание компонентов
Турникет состоит из двух боковых решеток безопасности, опорных стоек и поперечного короба. Стойки и поперечный короб имеют съемные крышки для проводки кабелей, установки блока управления и/или дополнительных электронных устройств. Центральная вращающаяся часть изготовлена из стали AISI 304 и разделена на 4 секции стержнями-планками из глянцевой стали (Ø 40 мм). Решетки безопасности изготовлены из перфорированных листов AISI 304.

1. Опорные стойки
2. Нижняя пластина со стержнем
3. Поперечный короб
4. Центральная вращающаяся часть
5. Г-образные стойки со стержнями-планками
6. Боковые стойки
7. Съемные кожухи боковых стоек
8. Решетки безопасности
9. Съемная крышка короба
10. Механизм вращения
11. Блок управления
12. Светодиодный указатель направления движения с дисплеем
13. Отверстие для установки проксимитисчитывателя
14. Лампа дополнительного освещения
Бренд турникета | Came |
Вид турникета | Турникет |
Тип турникета | Полноростовой |
Тип корпуса турникета | Однопроходной, Напольный |
Тип привода турникета | Роторный |
Исполнение турникета | Уличное (под навесом) |
Материал корпуса турникета | Окрашенная сталь |
Преграждающие планки/створки | Стандартные, в комплекте |
Антипаника | Автоматическая |
Тип блокировки | Нормально закрытый (НЗ) |
Встроенный картоприемник | Нет |
Встроенные считыватели | Без считывателей |
Пропускная способность | 10 чел/мин |
Пульт управления | Приобретается отдельно |
Напряжение питания | 230 В |
Источник питания | Встроенный |
Потребляемый ток, макс. | 223 мА |
Габариты | 1510х1600х2332 мм |
Ширина перекрываемого прохода | 1510 мм |
Высота прохода | 2130 мм |
Вес, кг | 430 |
Рабочая температура | от -20°C до +55°C |
Класс защиты (IP) | IP44 |
Класс изоляции | II |
Стыковка со СКУД | Любые типы СКУД |
Гарантия | 3 года |
Страна производства | Италия |
Функция «Быстрый заказ» позволяет покупателю не проходить всю процедуру оформления заказа самостоятельно. Вы заполняете форму, и через короткое время вам перезвонит менеджер магазина. Он уточнит все условия заказа, ответит на вопросы, касающиеся качества товара, его особенностей. А также подскажет о вариантах оплаты и доставки.
По результатам звонка, пользователь либо, получив уточнения, самостоятельно оформляет заказ, укомплектовав его необходимыми позициями, либо соглашается на оформление в том виде, в котором есть сейчас. Получает подтверждение на почту или на мобильный телефон и ждёт доставки.
Оформление заказа в стандартном режиме
Если вы уверены в выборе, то можете самостоятельно оформить заказ, заполнив по этапам всю форму.
Заполнение адреса
Выберите из списка название вашего региона и населённого пункта. Если вы не нашли свой населённый пункт в списке, выберите значение «Другое местоположение» и впишите название своего населённого пункта в графу «Город». Введите правильный индекс.
Доставка
В зависимости от места жительства вам предложат варианты доставки. Выберите любой удобный способ. Подробнее об условиях доставки читайте в разделе «Доставка».
Оплата
Выберите оптимальный способ оплаты. Подробнее о всех вариантах читайте в разделе «Оплата»
Покупатель
Введите данные о себе: ФИО, адрес доставки, номер телефона. В поле «Комментарии к заказу» введите сведения, которые могут пригодиться курьеру, например: подъезды в доме считаются справа налево.
Оформление заказа
Проверьте правильность ввода информации: позиции заказа, выбор местоположения, данные о покупателе. Нажмите кнопку «Оформить заказ».
Наш сервис запоминает данные о пользователе, информацию о заказе и в следующий раз предложит вам повторить к вводу данные предыдущего заказа. Если условия вам не подходят, выбирайте другие варианты.
Если Вы хотите узнать об условиях доставки и оплаты, но не желаете о них читать, то Вы можете позвонить любому нашему сотруднику, и он обязательно Вам поможет.
Покупка за безналичный расчет
При оплате за безналичный расчет наш сотрудник свяжется с Вами, чтобы подтвердить заказ и уточнить сроки и адрес доставки. После оформления заказа сотрудник нашей компании вышлет вам счет, по которому необходимо будет произвести оплату.
После оплаты заказа к Вам приедет наш курьер, который доставит ваш заказ.
Самостоятельно забрать заказ из пунктов самовывоза Вы можете после его оплаты по безналичному расчету. Оплата доставки до пунктов выдачи транспортных компаний производится по тарифам выбранной Вами транспортной компании непосредственно в месте получения заказа.
Самовывоз из офиса нашей компании в Зеленограде, так же возможен после предоплаты по безналичному расчету, и предварительной договоренности с менеджером.
Интернет-магазин выполняет доставку любого товара своей собственной Службой доставки.
Стоимость доставки курьером
Стоимость доставки по Москве, Все товары —750 руб., бесплатная доставка от 25000 руб
Стоимость доставки по Московской области рассчитывается для каждого заказа индивидуально и зависит от суммарного веса товаров заказа и удаленности адреса доставки.
Время доставки
Время доставки согласовывается с менеджером Службы доставки, который обязательно свяжется с вами сразу после того, как вы разместите свой заказ.
Для осуществления доставки в регионы России мы пользуемся услугами компаний СДЭК, ЖелДорЭкспедиция, Автотрейдинг, Деловые Линии. В таком случае, указанными кампаниями взимается стоимость доставки по их внутренним тарифам с заказчика при получении товара.
Самовывоз
Забрать товар самостоятельно и абсолютно бесплатно можно только по адресу: Москва, Зеленоград, Панфиловский проспект, дом 10.
Забрать товар самовывозом можно по любому из адресов самовывоза указанных здесь, стоимость доставки до пункта самовывоза рассчитывается для каждого заказа по тарифам транспортных компаний.









