Линейка скоростных калиток EasyGate представляет собой соединение последних разработок в сфере систем контроля доступа с высоким уровнем безопасности и удобством для пользователя. Сочетание нержавеющей стали и стекла, дерева или другого материала (искусственного камня, натурального дерева и других) создает привлекательный внешний вид турникета. Мощный привод обеспечивает большое количество режимов работы турникета, высокую проходимость и высокий уровень безопасности.
Широкий выбор форм корпуса, дизайна и отделки поверхности является гарантией того, что турникет органично впишется в любой интерьер.
Сочетание эргономики и дизайна в данных турникетах позволяет учесть пожелания самых требовательных покупателей.
Особенности
• Центральный модуль с сервоприводами на 2 прохода, ширина прохода 650 мм
• 2 боковых модуля с сервоприводом, ширина прохода 650 мм
• 4 створки в комплекте: калёное безопасное стекло 10 мм, прозрачное, высота - 990 мм, ширина 300 мм
• Габариты турникета: высота - 990 мм; длина - 1400 мм; ширина - 1660 мм
• Корпус - матовая нержавеющая сталь; верхняя панель - чёрное стекло
• Не подходит для уличной установки
• В комплекте блок питания
Пульт управления доступом не входит в комплект поставки и приобретается отдельно.
Проходная зона с распашными створками представляет собой сочетание тонкого корпуса турникета и высокоскоростного мотора. Наши дизайнеры постарались объединить возможность установки турникета в любом помещении и возможность установки дополнительного оборудования. Помимо этого, наша технология позволяет устанавливать турникеты как в помещении, так и на улице. Также покупатель может выбрать размер корпуса и высоту барьерного стекла, что позволяет турникетам EasyGate стать идеальным решением для различных проектов.

Серия турникетов EasyGateElite
• Самый тонкий корпус в линейке турникетов EasyGate
• Два варианта дизайна корпуса турникета
• Самые широкие возможности для кастомизации турникетов
• Совместимость со всеми системами контроля доступа 30 пар инфракрасных сенсоров пресекают проход по двое и контролируют проход через турникет
• Технология с 1 или 2 створками
• Широкий выбор дополнительного оборудования
Турникет может быть выполнен в любом цвете и с различным покрытием, что дает широкие возможности использования данного оборудования в любом интерьере (варианты исполнения – нержавеющая сталь, черная или бронзовая нержавеющая сталь, покрытие для нержавеющей стали цветами из линейки RAL и т.д.)

Характеристики турникета:
• Условия установки: Внутри помещения
• Механизм привода: Fail-Safe
• Аварийный режим: Открывается автоматически по направлению к выходу
Уровни безопасности
• 30 пар инфракрасных сенсоров
• Предотвращение прохода по двое / датчик прохода через турникет
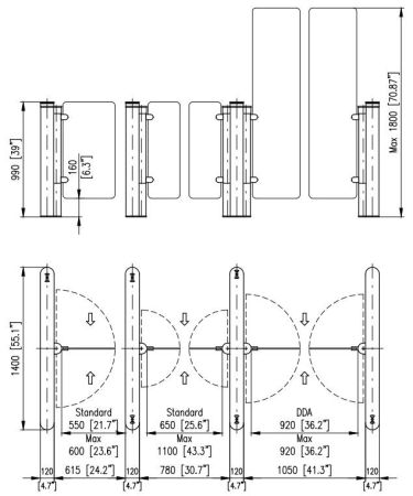
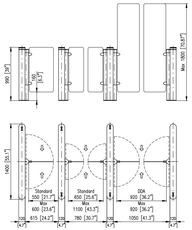
Размеры
• Высота корпуса: 990 мм
• Длина корпуса: 1 400 мм
• Ширина корпуса: 120 мм

Высота ограничителя
• Стандарт: 990 мм
• Максимальная: 1 800 мм
Ширина прохода для турникета с двумя ограничителями
• Стандарт: 650 мм
• Максимальная: 1 050 мм
Стандартный материал исполнения
• Корпус: матовая нержавеющая сталь
• Верхняя панель: черное стекло
• Ограничитель: 10 мм закаленное стекло
• Боковые панели: 6 мм закаленное стекло
Дополнительное оборудование
• Верхняя панель из нержавеющей стали
• Непрозрачные боковые панели
• Бесконтактный RFID считыватель карт (встроенный)
• Индикация прохода, подсветка
• WAV плеер
• Подсветка ограничителя / декоративная накладка крепления створки
• USB конвертер / конвертер локальных сетей
• Сенсорный пульт управления EasyTouch / TouchPanel кнопочная панель управления / T-MON программное обеспечение для программирования режимов работы турникета
• SuperCup блок аварийной разблокировки
• Альтернативные варианты отделки поверхности
• Дополнительные варианты отделки верхней части турникета
• Возможность сбора пропусков
• Мобильная паллета
Бренд турникета | Cominfo |
Вид турникета | Турникет |
Тип турникета | C распашными створками |
Тип корпуса турникета | Двухпроходной, Тумбовый, Напольный |
Тип привода турникета | Электромоторный |
Исполнение турникета | Для помещений |
Материал корпуса турникета | Нержавеющая сталь |
Преграждающие планки/створки | Стандартные, в комплекте, Створки |
Тип блокировки | Нормально закрытый (НЗ), Нормально открытый (НО) |
Встроенный картоприемник | Нет |
Встроенные считыватели | Без считывателей |
Пульт управления | Приобретается отдельно |
Верхняя крышка | Из стекла |
Напряжение питания | 24 В / 100...230 В |
Габариты | 1660х900х1020 мм |
Ширина перекрываемого прохода | 1660 мм |
Ширина прохода | 650 мм |
Стыковка со СКУД | Любые типы СКУД |
Гарантия | 2 года |
Страна производства | Чехия |
Функция «Быстрый заказ» позволяет покупателю не проходить всю процедуру оформления заказа самостоятельно. Вы заполняете форму, и через короткое время вам перезвонит менеджер магазина. Он уточнит все условия заказа, ответит на вопросы, касающиеся качества товара, его особенностей. А также подскажет о вариантах оплаты и доставки.
По результатам звонка, пользователь либо, получив уточнения, самостоятельно оформляет заказ, укомплектовав его необходимыми позициями, либо соглашается на оформление в том виде, в котором есть сейчас. Получает подтверждение на почту или на мобильный телефон и ждёт доставки.
Оформление заказа в стандартном режиме
Если вы уверены в выборе, то можете самостоятельно оформить заказ, заполнив по этапам всю форму.
Заполнение адреса
Выберите из списка название вашего региона и населённого пункта. Если вы не нашли свой населённый пункт в списке, выберите значение «Другое местоположение» и впишите название своего населённого пункта в графу «Город». Введите правильный индекс.
Доставка
В зависимости от места жительства вам предложат варианты доставки. Выберите любой удобный способ. Подробнее об условиях доставки читайте в разделе «Доставка».
Оплата
Выберите оптимальный способ оплаты. Подробнее о всех вариантах читайте в разделе «Оплата»
Покупатель
Введите данные о себе: ФИО, адрес доставки, номер телефона. В поле «Комментарии к заказу» введите сведения, которые могут пригодиться курьеру, например: подъезды в доме считаются справа налево.
Оформление заказа
Проверьте правильность ввода информации: позиции заказа, выбор местоположения, данные о покупателе. Нажмите кнопку «Оформить заказ».
Наш сервис запоминает данные о пользователе, информацию о заказе и в следующий раз предложит вам повторить к вводу данные предыдущего заказа. Если условия вам не подходят, выбирайте другие варианты.
Если Вы хотите узнать об условиях доставки и оплаты, но не желаете о них читать, то Вы можете позвонить любому нашему сотруднику, и он обязательно Вам поможет.
Покупка за безналичный расчет
При оплате за безналичный расчет наш сотрудник свяжется с Вами, чтобы подтвердить заказ и уточнить сроки и адрес доставки. После оформления заказа сотрудник нашей компании вышлет вам счет, по которому необходимо будет произвести оплату.
После оплаты заказа к Вам приедет наш курьер, который доставит ваш заказ.
Самостоятельно забрать заказ из пунктов самовывоза Вы можете после его оплаты по безналичному расчету. Оплата доставки до пунктов выдачи транспортных компаний производится по тарифам выбранной Вами транспортной компании непосредственно в месте получения заказа.
Самовывоз из офиса нашей компании в Зеленограде, так же возможен после предоплаты по безналичному расчету, и предварительной договоренности с менеджером.
Интернет-магазин выполняет доставку любого товара своей собственной Службой доставки.
Стоимость доставки курьером
Стоимость доставки по Москве, Все товары —750 руб., бесплатная доставка от 25000 руб
Стоимость доставки по Московской области рассчитывается для каждого заказа индивидуально и зависит от суммарного веса товаров заказа и удаленности адреса доставки.
Время доставки
Время доставки согласовывается с менеджером Службы доставки, который обязательно свяжется с вами сразу после того, как вы разместите свой заказ.
Для осуществления доставки в регионы России мы пользуемся услугами компаний СДЭК, ЖелДорЭкспедиция, Автотрейдинг, Деловые Линии. В таком случае, указанными кампаниями взимается стоимость доставки по их внутренним тарифам с заказчика при получении товара.
Самовывоз
Забрать товар самостоятельно и абсолютно бесплатно можно только по адресу: Москва, Зеленоград, Панфиловский проспект, дом 10.
Забрать товар самовывозом можно по любому из адресов самовывоза указанных здесь, стоимость доставки до пункта самовывоза рассчитывается для каждого заказа по тарифам транспортных компаний.



















