Линейка скоростных калиток EasyGate представляет собой соединение последних разработок в сфере систем контроля доступа с высоким уровнем безопасности и удобством для пользователя. Сочетание нержавеющей стали и стекла, дерева или другого материала (искусственного камня, натурального дерева и других) создает привлекательный внешний вид турникета. Мощный привод обеспечивает большое количество режимов работы турникета, высокую проходимость и высокий уровень безопасности.
Широкий выбор форм корпуса, дизайна и отделки поверхности является гарантией того, что турникет органично впишется в любой интерьер.
Сочетание эргономики и дизайна в данных турникетах позволяет учесть пожелания самых требовательных покупателей.
Особенности
• Центральный модуль с сервоприводом на 2 прохода, ширина прохода 650 мм
• Сенсоры с обеих сторон
• Возможность проезда на инвалидной коляске
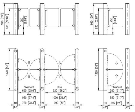
• 2 створки в комплекте: безопасное стекло 10 мм, прозрачное, высота - 835 мм
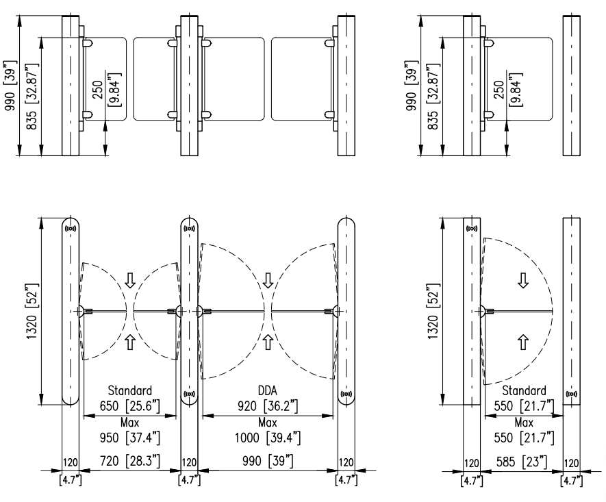
• Габариты корпуса без створки: высота - 990 мм; длина - 1320 мм, ширина - 120 мм
• Шлифованная нержавеющая сталь
• Не подходит для уличной установки
• В комплект входит блок питания
Пульт управления доступом не входит в комплект поставки и приобретается отдельно.
Проходная зона с распашными створками представляет собой сочетание тонкого корпуса турникета и высокоскоростного мотора. Наши дизайнеры постарались объединить возможность установки турникета в любом помещении и возможность установки дополнительного оборудования. Помимо этого, наша технология позволяет устанавливать турникеты как в помещении, так и на улице. Также покупатель может выбрать размер корпуса и высоту барьерного стекла, что позволяет турникетам EasyGate стать идеальным решением для различных проектов.
Серия турникетов EasyGate SG / SR
• Распашное открытие 1320 (длина корпуса турникета в мм)
• SG модель – закругленная форма
• SR модель - квадратная форма
Безопасность и обеспечение безопасности
• 6 - 24 пар инфракрасных сенсоров
• Уровни безопасности
• Автоматический контроль прохода в двух направлениях / датчик прохода через турникет
Характеристики турникета:
• Условия установки: Внутри помещения / На улице при условии защиты от осадков (дополнительная опция)
• Механизм привода: Fail-Safe
• Аварийный режим: Открывается автоматически по направлению к выходу
Размеры
• Высота корпуса: 990 мм
• Длина корпуса: 1 320 мм
• Ширина корпуса: 120 мм
• Высота створки: Стандарт: 850 мм
Ширина прохода для турникета с двумя ограничителями
• Стандарт: 650 мм
• Максимальная: 920 мм
Стандартный материал исполнения
• Корпус: матовая нержавеющая сталь
• Верхняя панель: матовая нержавеющая сталь с черным стеклом
• Ограничитель: 10 мм закаленное стекло
• Боковые панели: 6 мм ламинированное стекло
Дополнительное оборудование
• Бесконтактный RFID считыватель карт (встроенный)
• Индикация прохода / Подсветка прохода (только для EasyGate SR)
• WAV плеер
• Уличный пакет
• Подсветка ограничителя / Декоративная накладка крепления створки
• USB конвертер / Конвертер локальных сетей
• Сенсорный пульт управления EasyTouch / TouchPanel кнопочная панель управления / T-MON программное обеспечение для программирования режимов работы турникета
• SuperCup блок аварийной разблокировки
• Альтернативные варианты отделки поверхности
• Дополнительные варианты отделки верхней части турникета
• Мобильная паллета
Бренд турникета | Cominfo |
Вид турникета | Турникет |
Тип турникета | C распашными створками |
Тип корпуса турникета | Двухпроходной, Тумбовый, Напольный |
Тип привода турникета | Электромоторный |
Исполнение турникета | Для помещений |
Материал корпуса турникета | Нержавеющая сталь |
Преграждающие планки/створки | Стандартные, в комплекте, Створки |
Тип блокировки | Нормально закрытый (НЗ), Нормально открытый (НО) |
Встроенный картоприемник | Нет |
Встроенные считыватели | Без считывателей |
Пульт управления | Приобретается отдельно |
Напряжение питания | 24 В / 100...230 В |
Габариты | 770х1320х990 мм |
Ширина перекрываемого прохода | 770 мм |
Ширина прохода | 650 мм |
Стыковка со СКУД | Любые типы СКУД |
Гарантия | 2 года |
Страна производства | Чехия |
Функция «Быстрый заказ» позволяет покупателю не проходить всю процедуру оформления заказа самостоятельно. Вы заполняете форму, и через короткое время вам перезвонит менеджер магазина. Он уточнит все условия заказа, ответит на вопросы, касающиеся качества товара, его особенностей. А также подскажет о вариантах оплаты и доставки.
По результатам звонка, пользователь либо, получив уточнения, самостоятельно оформляет заказ, укомплектовав его необходимыми позициями, либо соглашается на оформление в том виде, в котором есть сейчас. Получает подтверждение на почту или на мобильный телефон и ждёт доставки.
Оформление заказа в стандартном режиме
Если вы уверены в выборе, то можете самостоятельно оформить заказ, заполнив по этапам всю форму.
Заполнение адреса
Выберите из списка название вашего региона и населённого пункта. Если вы не нашли свой населённый пункт в списке, выберите значение «Другое местоположение» и впишите название своего населённого пункта в графу «Город». Введите правильный индекс.
Доставка
В зависимости от места жительства вам предложат варианты доставки. Выберите любой удобный способ. Подробнее об условиях доставки читайте в разделе «Доставка».
Оплата
Выберите оптимальный способ оплаты. Подробнее о всех вариантах читайте в разделе «Оплата»
Покупатель
Введите данные о себе: ФИО, адрес доставки, номер телефона. В поле «Комментарии к заказу» введите сведения, которые могут пригодиться курьеру, например: подъезды в доме считаются справа налево.
Оформление заказа
Проверьте правильность ввода информации: позиции заказа, выбор местоположения, данные о покупателе. Нажмите кнопку «Оформить заказ».
Наш сервис запоминает данные о пользователе, информацию о заказе и в следующий раз предложит вам повторить к вводу данные предыдущего заказа. Если условия вам не подходят, выбирайте другие варианты.
Если Вы хотите узнать об условиях доставки и оплаты, но не желаете о них читать, то Вы можете позвонить любому нашему сотруднику, и он обязательно Вам поможет.
Покупка за безналичный расчет
При оплате за безналичный расчет наш сотрудник свяжется с Вами, чтобы подтвердить заказ и уточнить сроки и адрес доставки. После оформления заказа сотрудник нашей компании вышлет вам счет, по которому необходимо будет произвести оплату.
После оплаты заказа к Вам приедет наш курьер, который доставит ваш заказ.
Самостоятельно забрать заказ из пунктов самовывоза Вы можете после его оплаты по безналичному расчету. Оплата доставки до пунктов выдачи транспортных компаний производится по тарифам выбранной Вами транспортной компании непосредственно в месте получения заказа.
Самовывоз из офиса нашей компании в Зеленограде, так же возможен после предоплаты по безналичному расчету, и предварительной договоренности с менеджером.
Интернет-магазин выполняет доставку любого товара своей собственной Службой доставки.
Стоимость доставки курьером
Стоимость доставки по Москве, Все товары —750 руб., бесплатная доставка от 25000 руб
Стоимость доставки по Московской области рассчитывается для каждого заказа индивидуально и зависит от суммарного веса товаров заказа и удаленности адреса доставки.
Время доставки
Время доставки согласовывается с менеджером Службы доставки, который обязательно свяжется с вами сразу после того, как вы разместите свой заказ.
Для осуществления доставки в регионы России мы пользуемся услугами компаний СДЭК, ЖелДорЭкспедиция, Автотрейдинг, Деловые Линии. В таком случае, указанными кампаниями взимается стоимость доставки по их внутренним тарифам с заказчика при получении товара.
Самовывоз
Забрать товар самостоятельно и абсолютно бесплатно можно только по адресу: Москва, Зеленоград, Панфиловский проспект, дом 10.
Забрать товар самовывозом можно по любому из адресов самовывоза указанных здесь, стоимость доставки до пункта самовывоза рассчитывается для каждого заказа по тарифам транспортных компаний.







